Moment of Stillness
MA Major Thesis


Tutor: Dr. Nasser Golzari, Dr. Yara Sharif
University of Westminster _ September 2024
This thesis explores a radical approach to addressing environmental degradation and the impacts of capitalism by reimagining the skins of industrial sites. The concept revolves around using locally sourced agricultural waste—specifically corn cobs—to create a purifying material that absorbs air pollutants. This material is processed in low Earth orbit, where the unique space conditions enhance its effectiveness as a "purifier skin" for industrial sites on Earth. The project aims to offer an innovative, sustainable solution that minimises new ecological damage while catalysing a broader shift toward post-capitalist thinking, giving Earth a "moment of stillness" to heal.




The post-capitalist era demands a new approach to innovation—one that does not exploit but heals. We reject the notion that progress must come at the cost of the environment or human well-being. Instead, we advocate for a form of innovation that is regenerative, restorative, and deeply connected to the natural world. The purifier skins, produced in space and applied to industrial sites, represent this new mode of innovation. They are not just technological solutions; they are symbols of a new way of thinking—one that seeks to heal the wounds of the past and build a sustainable future.


My Final Design Project 2018
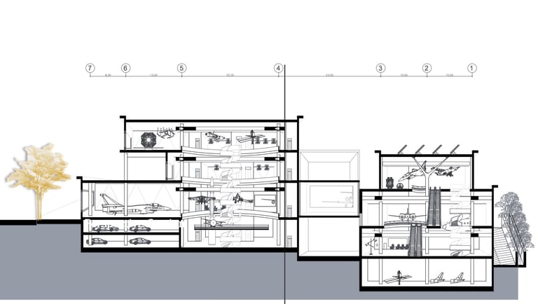
Aircraft Museum
Aircraft Museum
Date: Feb. 2018
Site Area: 9000 sq meters
Location : Mashhad, Iran
Type: Academic, Final Design
Grade : 19.5 from 20
Master : Eng. Vafaee
Khayyam University of Mashhad


Concept Description
The high-tech aircraft museum in Mashhad, Iran is a state-of-the-art facility that celebrates the rich history and technological advancements of the aviation industry. The museum's architecture and technical features are designed to create a dynamic and immersive experience for visitors, while also harmonizing with the surrounding environment.
The museum's exposed structure is a key feature of its design, showcasing the latest in architectural and engineering techniques. The use of exposed steel beams and concrete columns creates a striking visual effect, emphasizing the museum's connection to the high-tech aviation industry. The design also incorporates large windows and skylights, allowing natural light to flood the space and providing stunning views of the surrounding landscape.
The museum's facade is another standout feature, using specialized panels that can adjust themselves to the angle of sunlight. This innovative design not only creates a dynamic visual display, but also helps to regulate the internal temperature of the museum, reducing energy consumption and costs. The use of advanced materials and technologies in the facade also emphasizes the museum's commitment to innovation and cutting-edge technology.






Inside, the museum is designed to provide an engaging and interactive experience for visitors. The exhibition spaces are arranged thematically, with each section focusing on a particular aspect of aviation history or technology. The exhibits feature a range of artifacts, from early aviation pioneers to the latest aircraft designs, as well as interactive displays that allow visitors to experience flight and aviation technology in a hands-on way.
The technical features of the museum include a range of advanced technologies, such as augmented reality displays, interactive projections, and advanced sound systems. These technologies are integrated seamlessly into the exhibition spaces, allowing visitors to fully immerse themselves in the history and technology of aviation.
Overall, the high-tech aircraft museum in Mashhad, Iran is a unique and innovative space that celebrates the evolution and future of aviation technology. Its striking design and advanced technical features make it a must-visit destination for anyone interested in the history and advancements of the aviation industry.










Design 4 ( semester 7) 2017
University Hostle
University Hostel
Date: Feb. 2017
Location : Mashhad, Iran
Site Area: 11000 sq meters
Type: Academic, 4th Design
Grade : 19.5 from 20
Master : Eng. Vafaee
Khayyam University of Mashhad






Concept Description
Buildings can have a model reflection on society. Therefore, paying attention to the goals of sustainable development in their design will lead to disseminating sustainable architectural standards in society. The application of the concepts of sustainability and sustainable development goals to reduce energy waste and environmental pollution in architecture has created a topic called "sustainable architecture". In this type of architecture, the building not only adapts to the climatic conditions of its area but also interacts with it, "Buildings are like birds that cover their feathers in winter and adapt to new environmental conditions. "They adjust their metabolism accordingly."
Environmental issues have had a significant impact on contemporary architecture. An architecture that is highly efficient and, at the same time, treats its environment and context properly. Landscape enters the conversation as an option for linking full and empty objects between architecture and the city.
Applying the principles of indigenous architecture according to modern technology (rather than imitating and replicating it) and increasing the readability of urban space promote social interactions. This project aimed to increase the relationship between the building and the context while instilling a sense of belonging in the project audience. Since this use of project was a student dormitory, the plan was designed to create interactive and multi-purpose spaces.
Environmental issues have had a significant impact on contemporary architecture. An architecture that is highly efficient and, at the same time, treats its environment and context properly. Landscape enters the conversation as an option for linking full and empty objects between architecture and the city.






Every project needs a structure that defines the whole shape of the building; then, the details are formed. In the process of designing the facade of this project, brick was emphasized as a native material. With the help of a deconstructive layout, steps were taken to create a simple and, at the same time, different facade.
Academic project 2018
The Urban Zone Development Plan
The Urban Zone Development Plan
Date: 2018
Type: Academic project of “Introduction to Principle of Physics Environment” course
Location : Mashhad, Iran






